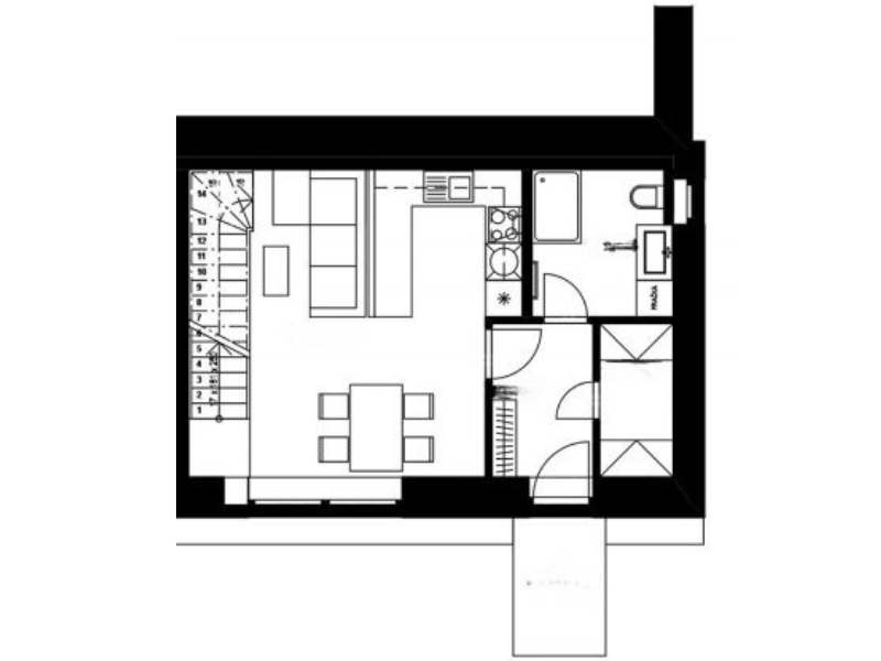
Podlahová plocha 87,5 m2
Dispozice 4+kk
Podlaží Dům B2
Stav Volné
Cena Na dotaz
Pro co nejpohodlnější používání webu potřebujeme váš souhlas se zpracováním souborů cookies. Souhlas udělíte kliknutím na tlačítko "Povolit vše".
Nastavení cookies
Upravte si cookies dle vlastních preferencí